Frederick C. Robie House
5757 S. Woodlawn Ave, Hyde Park, Chicado, IL
41.789792, -87.596121 (Datum WGS84)

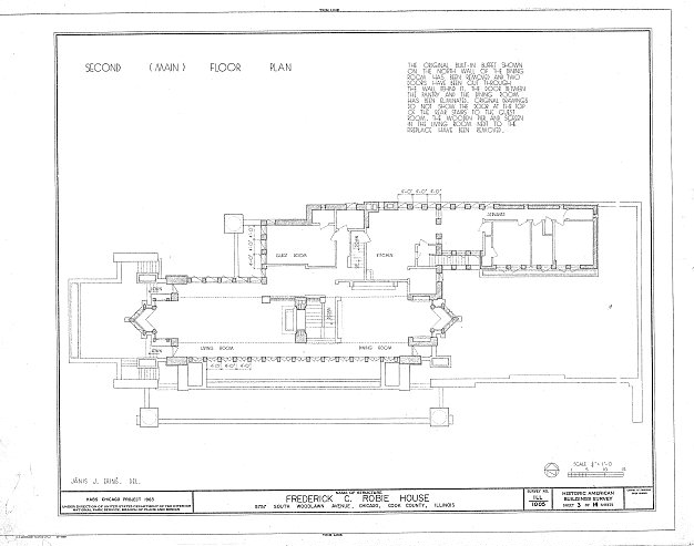
A residência de Frederick C. Robie (1906) representa a maturidade do estilo norte-americano da pradaria (prairie style), e virou ícone do trabalho de Frank Lloyd Wright por vários motivos. Os balanços e o sistema de unidades, base de sua arquitetura orgânica, estão aqui plenamente desenvolvidas. A varanda oeste atinge mais de 6 metros de balanço para a esquina, e deixa um elegante balcão de estar para o verão, cujo recuo em relação à Woodlawn Avenue permite uma invejável privacidade com amplo domínio visual da esquina.
O sol de meio-dia em pleno verão mal atinge a base da fachada sul envidraçada, demonstrando o completo domínio do microclima por Wright. Toda a casa tem sua privacidade garantida com o desenho dos balcões, a posição elevada do estar (no primeiro pavimento), e o domínio da diferença de intensidade luminosa entre interior e exterior – exemplo disso é o quarto de vestir do casal no segundo pavimento, que vê a rua sem ser por ela visto. Talvez da rua pareça ser um vidro reflexivo neste pavimento, mas isto não havia na época. Trata-se de um vidro comum abrigado da luz do dia pelo beiral e recuado em relação aos pavimentos inferiores.
Os vitrais, assim como outras muitas obras de Wright, são desenhados num organicismo que não deixa dúvida sobre suas raízes no Arts and Crafts e Art Déco. As instalações elétricas e mecânicas, inovadoras para a época, são integradas à expressão visual da casa, inclusive nas luminárias que Wright tentou adaptar às lâmpadas elétricas buscando o melhor efeito visual da reflexão da luz.
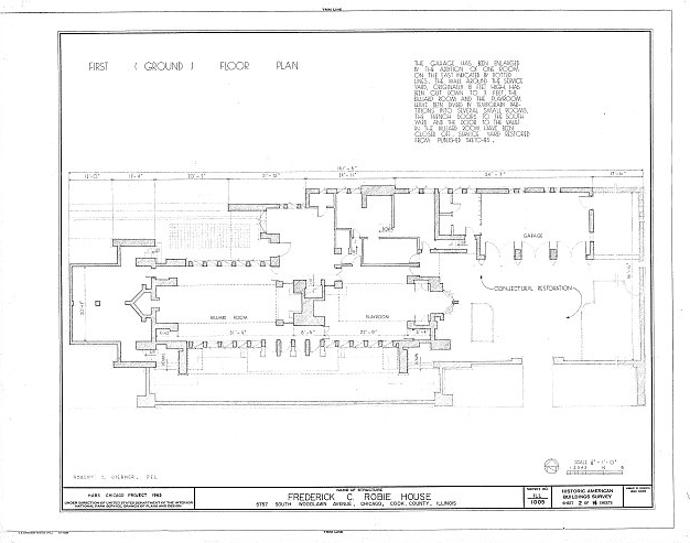
A cozinha tem um discreto acesso de serviço, por onde eram entregues cubos de gelo para uma primitiva geladeira. Seu mobiliário e layout buscam funcionalidade e praticidade de uma cozinha que só seria realizada décadas mais tarde.
O estilo da pradaria se recusava a dar continuidade nos dogmas europeus que até então dominavam a arquitetura dos Estados Unidos. Wright rebaixou o pé-direito e eliminou o porão de base, reduzindo a altura da edificação. A Robie House tem três pavimentos com um gabarito que exemplares próximos da mesma época abrigam apenas dois. Os ambientes sociais estão no primeiro pavimento, ainda próximo do nível da rua, mas com sua privacidade garantida pelo desnível. O terreno estreito e comprido levou a uma planta longilínea. Wright não isolaria os ambientes sociais para dissimular esta característica – preferiu separar com a lareira o estar da sala de jantar, aproveitando para encaixar a escada neste ponto intermediário.
A vanguarda da casa se manifesta em diversos detalhes. O quarto de hóspedes, por exemplo, tem uma lâmpada elétrica na parede, desde o início (até onde se sabe), sem luminária ou outra proteção, destoando das soluções dadas aos demais pontos de luz da casa. Não há registros sobre o motivo disso acontecer, mas acredita-se ter sido uma extravagância do proprietário em querer evidenciar a modernidade de sua residência a seus convidados. Outro detalhe vanguardista está na garagem para dois carros, pois a Sra. Laura Hieronymus Robie, graduada pela Universidade de Chicago, também conduzia numa época em que havia estigma sexista a esse respeito. As garagens foram alteradas em relação ao projeto original, e hoje abrigam uma loja e a base do pessoal do Frank Lloyd Wright Preservation Trust, que mantém esta e outras obras do arquiteto, além de realizar as visitas guiadas por monitores.
Houve ameaça de demolição em meados do século 20, cujo movimento preservacionista teve a participação do próprio Wright, que chegou a se manifestar em frente ao imóvel. A preservação foi garantida quando a casa ganhou o status de National Historic Landmark em 27 de novembro de 1963. Atualmente o imóvel pertence à Universidade de Chicago.
Apesar dos desenhos iniciais datados de 1906, Robie só teria comprado o terreno (de 60 por 180 pés) em maio de 1908, o que gerou certa discussão sobre a data real do projeto. A construção foi iniciada em 15 de abril de 1909, e Wright só acompanhou o início da obra. No final de 1909, o arquiteto foi para a Europa divulgar seu trabalho. A família Robie, com dois filhos, se mudou para a casa em maio de 1910, apesar da obra vir a ser realmente concluída apenas em janeiro de 1911.























